VILLA A SCHIERA SU TRE PIANI CON GIARDINO

Lucca - Arancio - San Marco - San Filippo - San Vito

€ 950

154 m2

Galleria immagini

Foto principale
Foto immobile
Foto immobile
Foto immobile
Foto immobile
Foto immobile
Foto immobile
Foto immobile

Descrizione

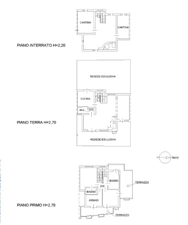
TEMPAGNANO_ RIF. A4497 In bel contesto immerso nel verde a pochi passi dalla città, affittasi villetta libera su due lati (fronte e retro) arredata di SOLA CUCINA e composta al piano terra da ingresso, soggiorno con camino, bagno, cucinotto separato con accesso al giardino di 40 mq recintato e privato. Al piano primo una camera matrimoniale con bagno privato, camera singola con accesso al balcone, camera media con accesso alla terrazza e bagno grande con vasca idromassaggio con accesso alla terrazza. Al piano seminterrato ampio vano con forno a legna e camino, cantina e lavanderia. A corredo 3 posti auto privati esterni, giardino, sottotetto, riscaldamento a gas con pompa di calore con pannelli fotovoltaici, aria condizionata, allarme, videocitofono, vetri doppi, lavastoviglie e zanzariere. Libera da Luglio 2026. Contratto di tipo 3+2 con residenza, richiesta economica 950 + 150,00 € di condominio compreso di riscaldamento ed energia elettrica. Rimangono da pagare a parte le utenze: gas e energia (collegate ai pannelli fotovoltaici) e spazzatura *** LE FOTO SONO DI REPERTORIO E NON CORRISPONDONO ALLA REALTA'****

Dettagli dell'immobile

Riferimento: A4497
Tipologia: Villa a Schiera
Stato: Ottimo
Prezzo: €950
Camere: 3
MQ: 154
Posti auto: 3

Caratteristiche

Terrazzo
Giardino privato
Riscaldamento

Planimetrie

Foto principale
Foto immobile
Foto immobile

VUOI SAPERE SE LA TUA CASA É IN REGOLA
CON LE VARIE DOCUMENTAZIONI PER ESSERE VENDUTA ?

Scopri come fare